St.-Winfridusstraat 30 3553 SE Utrecht

€ 469.000,- k.k.

Reageren op woning
Sluit

    Reageren op deze woning

    • Overzicht
    • Kenmerken
    • Omschrijving
    • Media (63)
    • Op kaart
    • Brochure

    Kenmerken

    • Status Verkocht
    • Vraagprijs € 469.000,- k.k.
    • Bouwvorm
    • Soort woningEengezinswoning
    • Type woningTussenwoning
    • Bouwjaar1919
    • BouwvormBestaande bouw
    • SpecifiekGedeeltelijk gestoffeerd
    • LiggingAan rustige weg, in woonwijk
    • Soort dakZadeldak
    • Oppervlakte en inhoud
    • Woonoppervlakte71 m²
    • Perceeloppervlakte 76 m²
    • Inhoud291 m³
    • Aantal externe bergruimtes1
    • Indeling
    • Aantal kamers 5 (3 slaapkamers)
    • Aantal woonlagen3 woonlagen
    • Parkeren
    • Garage Geen garage
    • Parkeerfaciliteiten Openbaar parkeren
    • Overige
    • Permanente bewoning Ja
    • Onderhoud binnen Goed
    • Onderhoud buiten Goed
    • Huidig gebruik Woonruimte
    • Huidige bestemming Woonruimte
    • Tv kabel Ja
    • Dakraam Ja
    • Natuurlijke ventilatie Ja

    Uitgebreide omschrijving

    Bekijk ook onze exclusieve op maat gemaakte video en/of de 360 graden virtuele tour voor een goede indruk van deze goed onderhouden 4-kamer woning op een toplocatie in Utrecht!

    Ben je op zoek naar een lichte en sfeervolle 2-laags woning met een gezellige, knusse achtertuin op een centrale locatie in Utrecht? Dan is deze eengezinswoning uit ca. 1919 (ca. 71 m² woonoppervlakte op een perceel van 76 m²) precies wat je zoekt!

    Kenmerkend voor deze 4-kamer eengezinswoning is het hoge afwerkings-/ en onderhoudsniveau, de lichte en tuingerichte woonkamer v.v. loopdeur naar de achtertuin, de nette keuken, de 3 ruime en multifunctionele (slaap)kamers (ca. 6, 9 & 9 m2) en de luxe, recent vernieuwde badkamer (medio 2025). De huidige bewoners hebben medio 2025 alle kozijnen vernieuwd en voorzien van HR++ glas, is de vloer geïsoleerd met PIF Floor en het dak geïsoleerd met glaswoldeken Rd. Dit alles resulteert in een mooi energielabel C.

    De woning is gelegen in de populaire B-buurt, Zuilen in Utrecht. In de directe omgeving vind je tal van voorzieningen, zoals het brede winkelaanbod aan de Amsterdamsestraatweg, winkelcentrum Rokade, Julianapark diverse sportvoorzieningen, meerdere openbaarvervoermogelijkheden en uitvalswegen zoals de A2,A12,A27 en A28 snel te bereiken). Ook Utrecht Centraal en het stadscentrum zijn uitstekend bereikbaar: met de fiets ben je er in tien minuten. Ben je in het bezit van een auto? In deze buurt kun je nog steeds vrij parkeren.

    Kortom: Een fijn huis, lekker licht, op een populaire locatie in Utrecht! Hier voelt het echt als thuiskomen! Benieuwd naar deze woning?
    Kom een kijkje nemen, de koffie staat voor je klaar!

    Indeling
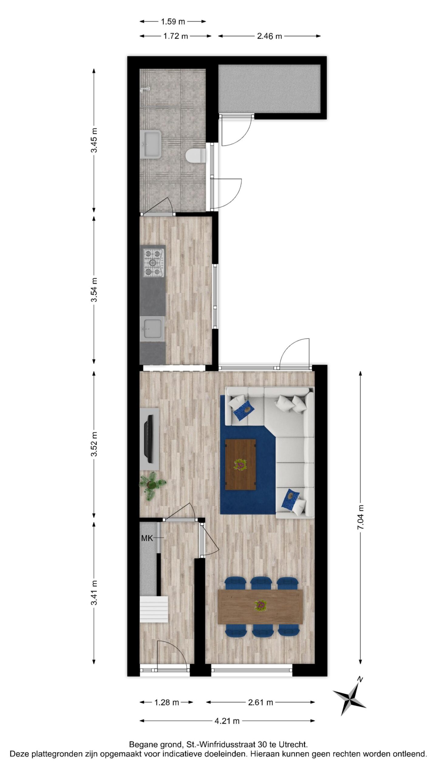
    Begane grond:
    Via de voortuin bereik je de voordeur en kom je binnen in de praktische hal, voorzien van een trapkast, de meterkast en de trap naar de tweede verdieping. Vanuit de hal heb je toegang tot de woonkamer met halfopen keuken.

    De doorzonwoonkamer (ca. 7.04 x 4.21/ 2.61m) is heerlijk licht door de grote raampartijen aan de voor- en achterzijde van de woning. Aan de voorzijde van de woonkamer is ruimte voor een gezellige eethoek met uitzicht op de voortuin en de gezellige St.-Winfridusstraat.

    Aan de achterzijde van de woning bevindt zich de ruime zithoek en bereik je via de loopdeur de achtertuin. De halfopen keuken (ca. 3.54 x 1.72 m), opgesteld in een wandopstelling, is uitgevoerd in een witte kleurstelling en voorzien van diverse apparatuur, waaronder een vijf-pits gasfornuis, rvs-afzuigkap, vaatwasser en een separate koel-/ vriescombinatie.

    Aan de achterzijde van de woning bevindt zich de recent vernieuwde (medio 2025) badkamer (ca. 3.45 x 1.59 m), uitgevoerd met stijlvolle, licht beige wandtegels en grijze vloertegels. Het strak gestucte plafond is voorzien van inbouwspotjes. De badkamer is compleet ingericht met een een ruime inloopdouche, een wastafel met bijpassend meubel en een hangend toilet. De badkamer is voorzien van een raam en deur ten behoeve van daglicht en natuurlijke ventilatie.

    De begane grond is voorzien van een gladde muur-/ en plafondafwerking en een lichte laminaatvloer.

    Buitenruimte:
    De heerlijke, onderhoudsvriendelijke tuin (ca. 5.90 x 2.46 m) is gelegen op het noordwesten en voorzien van een ruime stenen berging. Een fijne plek om samen met vrienden en familie te genieten van een drankje of een gezellige barbecue! De berging, over de volle breedte van de tuin, biedt volop ruimte voor het opbergen van (tuin)spullen die niet dagelijks nodig zijn. Bovendien bevindt zich hier de aansluiting voor de wasmachine en droger, evenals de opstelplaats voor de CV-ketel.

    Eerste verdieping
    Via de vaste trap bereik je de eerste verdieping, waar je uitkomt op de overloop die toegang biedt tot de drie volwaardige en multifunctionele (slaap)kamers.

    Aan de voorzijde van de woning bevindt zich een ruime, lichte slaapkamer (ca. 3.28 x 2.88m), voorzien van een handige inbouwkast voor al je kleding en een groot raam met weids uitzicht over de St.- Winfridusstraat.

    Aan de achterzijde van de woning bevinden zich nog twee lichte en multifunctionele (slaap)kamers (6 & 9 m2) eveneens met grote ramen, die uitzicht bieden op de groene tuinen van de omliggende woningen.

    De gehele verdieping is afgewerkt met een gladde wand-/ en plafondwerking en een keurige laminaatvloer.

    Via een vlizotrap op de overloop bereik je de geïsoleerde vliering (ca. 4.32 x 3.76 m), die een zee aan extra opbergruimte biedt, ideaal voor koffers, kerstspullen of andere seizoensgebonden items.

    Bijzonderheden:
    – Bouwjaar: medio 1919;
    – Woonoppervlak: ca. 71 m²;
    – Perceeloppervlakte: 76 m2;
    – Energielabel: C (gevalideerd in 27-10-2025 geldig tot 27-10-2035);
    – Warmwatervoorziening geschiedt middels een CV-ketel (Merk: Intergas, Bouwjaar: 2025)
    – De begane grond is voorzien van PIF Floor vloerisolatie;
    – De gehele woning is voorzien van nieuwe hardhouten kozijnen en HR++ beglazing;
    – Het dak van de woning is in juni 2025 volledig vernieuwd en geïsoleerd met glaswoldeken Rd.;
    – De woning beschikt over veel opbergruimte door ingebouwde kasten en de vliering over de volledige breedte van de woning;
    – NVM Ouderdomsclausule zal worden opgenomen in de koopovereenkomst;
    – NVM Asbestclausule zal worden opgenomen in de koopovereenkomst;
    – Oplevering in overleg.

    +

    Kan ik je ergens mee helpen?

    Vul onderstaand formulier in,
    wij bellen je graag terug!

      Loading